Продажа дома

Курганская область, Курган, Рассветный (Зайково мкр.) пер

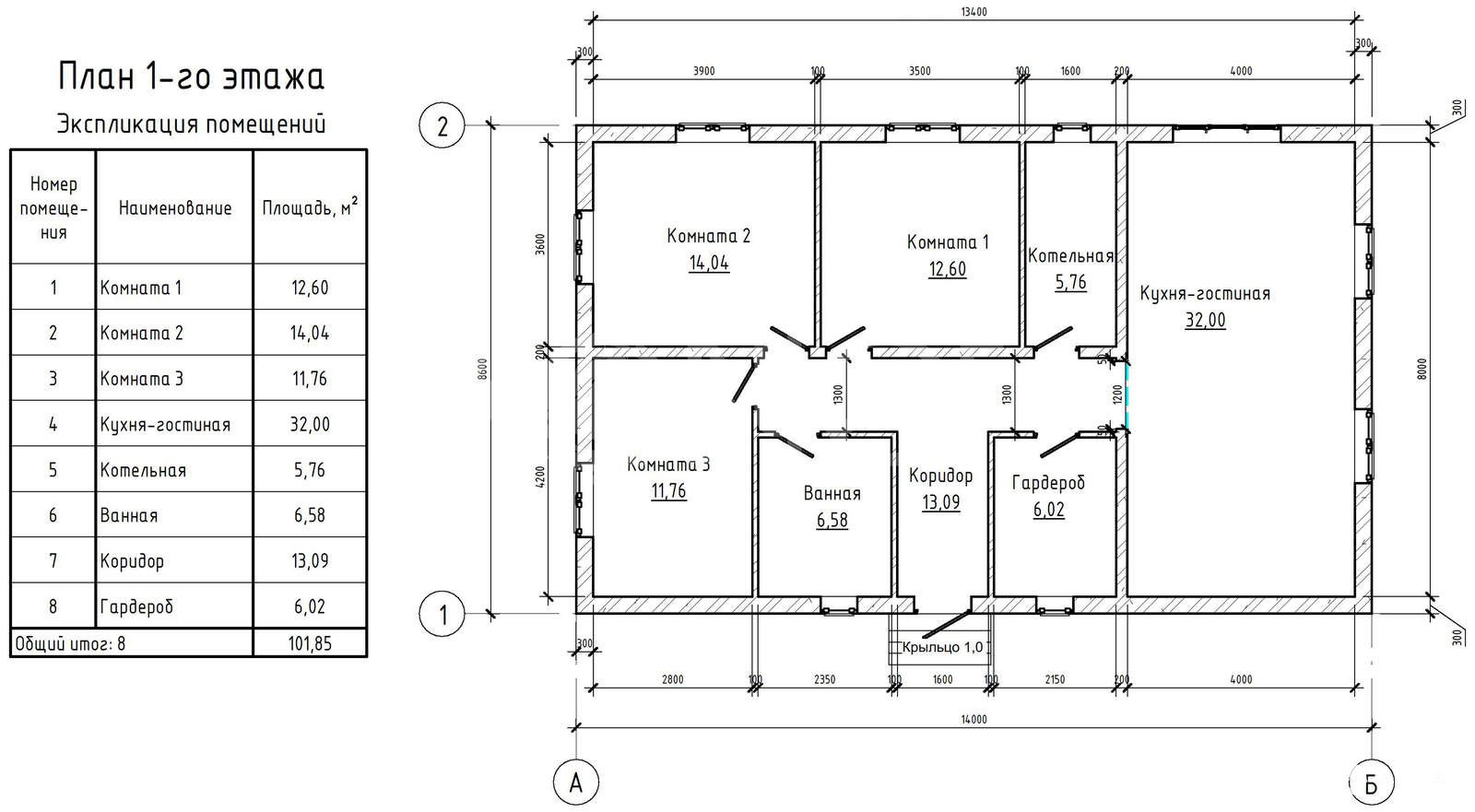
100 м²
Площадь
55.00 м²
Жилая площадь
30.00 м²
Площадь кухни
1
Этажность
13 сот
Площадь участка

3 354 000 ₽

33 540 ₽ за м²

ID объявления 12315968

Поделиться

Добавить в избранное

Доверьте строительство Вашего дома профессионалам.

Построим на Вашем участке или можете выбрать участок у нас.

Земельные участки можем предложить в мкр. Зайково, мкр. Черемухово, п.Введенское.

Все участки расположены в НИКОГДА НЕ ЗАТОПЛЯЕМОЙ ЗОНЕ!

Также можем подобрать для Вас участок при необходимости.




Работаем по договору подряда (каждый этап согласовывается с вами на основе сметы).

Гарантия на строительство.

Материал дома - газобетон. Срок возведения дома 5-6 месяцев.

Используем только надежные качественные материалы.

Стоимость указана для комплектации "холодный контур" при наличном расчете.




В холодный контур входит:

- фундамент ленточный малозаглубленный утепленный h 800мм ширина ленты 400мм;

- коробка дома с несущей стеной (газобетон D500 300мм);

- армопояс утепленный;

- крыша двухскатная с фронтонами OSB 9мм или четырехскатная вальмовая;

- кровля Профлист МП-20 толщина 0, 5мм или Металлочерепица 0, 45мм;

- двухкамерные пластиковые окна (Профиль 70мм) с москитными сетками;

- входная металлическая дверь с терморазрывом.




Стоимость такого дома в "теплом контуре" составляет 5 074 000 р.

В тёплый контур входит:

- пол по грунту с системой тёплый водяной пол, стяжка пола;

- коллектор отопления, электрокотел;

- утепленный минеральной ватой черновой потолок с парозащитной пленкой, подшитый влагостойкой OSB 9мм;

- перегородки (газобетон D500 100мм);

- водоснабжение и водоотведение внутри дома;

- электропроводка.




Наличный расчет, рассрочка, ипотека.

Наша компания аккредитована в банках.






Звоните сейчас, не затягивайте с решением, стоимость работ и материалов будет значительно дорожает, успевайте по сегодняшним ценам!









Дата обновления: 11 апреля 2026