Продажа торговой площади

18 550 000 ₽

265 266 ₽ за м²

70 м²
Площадь
1/8
Этаж

Поделиться

Добавить в избранное

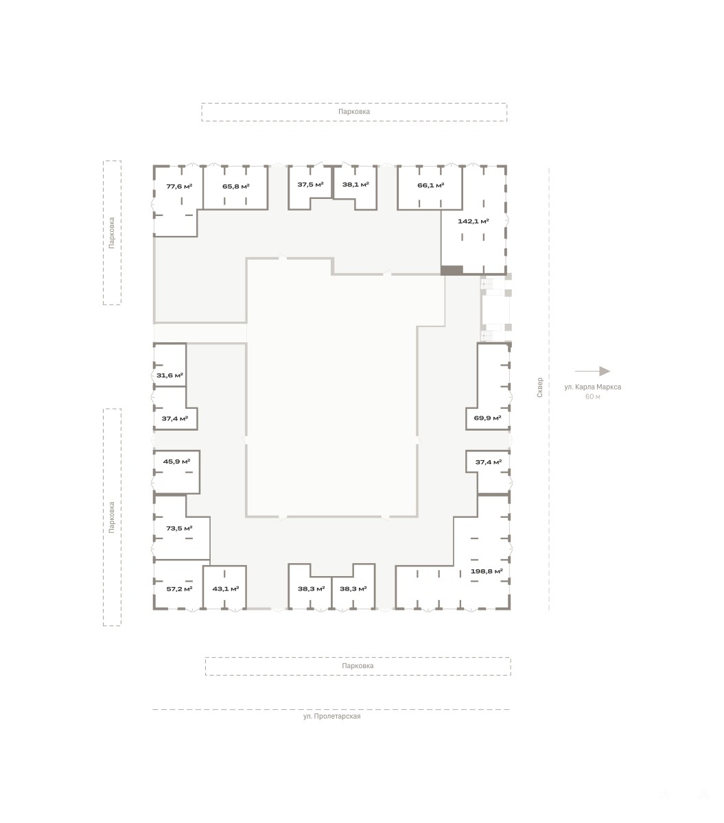
Торговое помещение на 1 этаже, общая площадь 69.93 кв.м., без отделки. Стоимость помещения 18, 550, 000 руб., цена за кв.м 265, 265 руб.

«Дом кино» находится в самом центре Кургана, на пересечении улиц Пролетарская и Карла Маркса. Район насыщен всей необходимой инфраструктурой: здесь есть школы, детские сады, поликлиники, больницы, учреждения культуры и досуга, магазины и рестораны, офисы.
Рядом расположены автобусные остановки, поэтому можно быстро добраться в любую часть города без автомобиля.
В шаговой доступности от дома находится Курганский государственный университет, художественный музей, библиотека имени Маяковского, филармония, городской сквер и торговый центр «Звёздный».

Проект расположен на месте бывшего кинотеатра «Звёздный». В советское время он считался лучшим в области, сотни людей собирались на премьерные кинопоказы.
Архитектура дома идентична исторической застройке района и гармонично вписывается в его панораму. Основная часть здания имеет высотность девять этажей. Башня является доминантой и ориентирована на городской сквер, ее высота 15 этажей.
Фасады выполнены в теплой цветовой гамме коричневых и песочных оттенков.
Яркой архитектурной деталью проекта станет арка высотой более чем в два этажа. Она раскинется над лестницей, которая ведет напрямую в городской сквер из двора.

Двор - это приватное пространство для жителей, закрытое от машин. В нём спроектированы детская и спортивная площадки, выполненные из натуральных материалов, а также зоны отдыха.
Прямой выход в городской сквер расширяет функционал двора. Жители смогут быстро попадать в общественную зону с фонтаном, детскими и спортивными площадками и местами для отдыха.
Большую часть территории двора занимает зелень. Растения представлены различными видами деревьев, кустарников, а также цветущими многолетниками. Зелень и стены дома выступают в качестве буфера, закрывая двор от шума городских магистралей. Ландшафт остается ярким в любой сезон. (AQID02532367)

Дата обновления: 2 февраля 2026