Продажа торговой площади

15 550 000 ₽

235 179 ₽ за м²

66 м²
Площадь
1/15
Этаж

Поделиться

Добавить в избранное

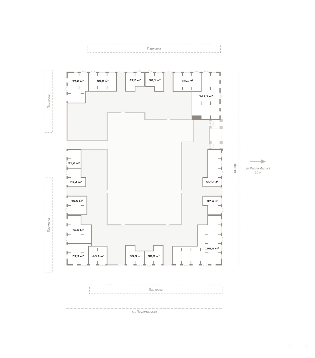
Торговое помещение на 1 этаже, общая площадь 66.12 кв.м., без отделки. Стоимость помещения 15, 550, 000 руб., цена за кв.м 235, 178 руб.

1 КВАРТАЛ 2027

Продается коммерческое помещение в квартале «Дом кино»0, 63 Га
Рядом с торговым центром «Звёздный»

18 400 м2
Площадь жилья

812 человек
Перспективное количество жителей жилого района

25 000 человек
Количество жителей в шаговой доступности

«Дом кино» находится в центре городской инфраструктуры, в непосредственной близости от популярных общественных мест для прогулок и культурнодосуговых центров. Такое расположение автоматически помещает проект в зону активного внимания горожан.

На первых этажах расположатся коммерческие помещения, которые можно приобрести для открытия бизнеса. Городской сквер укроет их от шума улиц и обеспечит трафик. В каждом помещении будет спроектирован отдельный вход, высокие потолки и панорамные окна. Так же будет сделана подготовка к ремонту.

В шаговой доступности есть торговый центр «Звёздный», рядом школы, гимназии и детские сады, магазины, медицинские центры, поликлиники, культурно-досуговые центры, городские скверы и парки.

Технические параметры:
Высота потолков от 3 метров
Предусмотрено место для информационно-рекламной вывески
Витражное остекление
Отдельный вход в каждое помещение
Инженерные коммуникации: водоотведение, канализация, электричество, радиаторы
Приборы учета
Отдельный вентиляционный канал

Инвестировать в коммерческие помещения Брусники это обдуманный шаг для открытия собственного дела или создания арендного бизнеса с высокой доходностью. Мы проектируем наши объекты таким образом, чтобы они становились центрами притяжения для жителей района и его гостей. Благодаря удачному расположению и тщательно продуманной инфраструктуре, наши проекты привлекают большой пешеходный трафик. (AQID02532369)

Дата обновления: 25 февраля 2026